Thoma Holz100 Haus in Wellin, Provinz Luxemburg - Thoma Holz100

Thoma Holz100 Haus in Wellin, Provinz Luxemburg

Ein sehr gut ausgerichtetes und zurückversetztes Wohnhaus auf einem Grundstück von fünfundzwanzig Ar einundsechzig Zentiaren (25,61 Ar).

Lage

In Wellin, Provinz Luxemburg, einem Dorf mit Anbindung an mehrere Regionalstraßen und die Autobahn E411, die Brüssel und Luxemburg verbindet. Das Haus wurde zurückversetzt von einer Regionalstraße gebaut.

Wellin verfügt über mehrere Geschäfte, Kindergärten und Grundschulen, ein Restaurant und eine Poststelle.

Ökologische Bauweise

Das Tragwerk wurde mit dem Massivholzsystem Thoma Holz100 realisiert – ein 100% natürliches System ohne Chemie und Leim. Das Haus ist mit natürlichen Dämmstoffen wärmegedämmt. Die Außenverkleidung besteht aus Massivholz.

Auch der Fußboden stammt von der Firma Thoma: massives, mondgeschlagenes Eichenholz mit 23 mm Stärke

Raumaufteilung

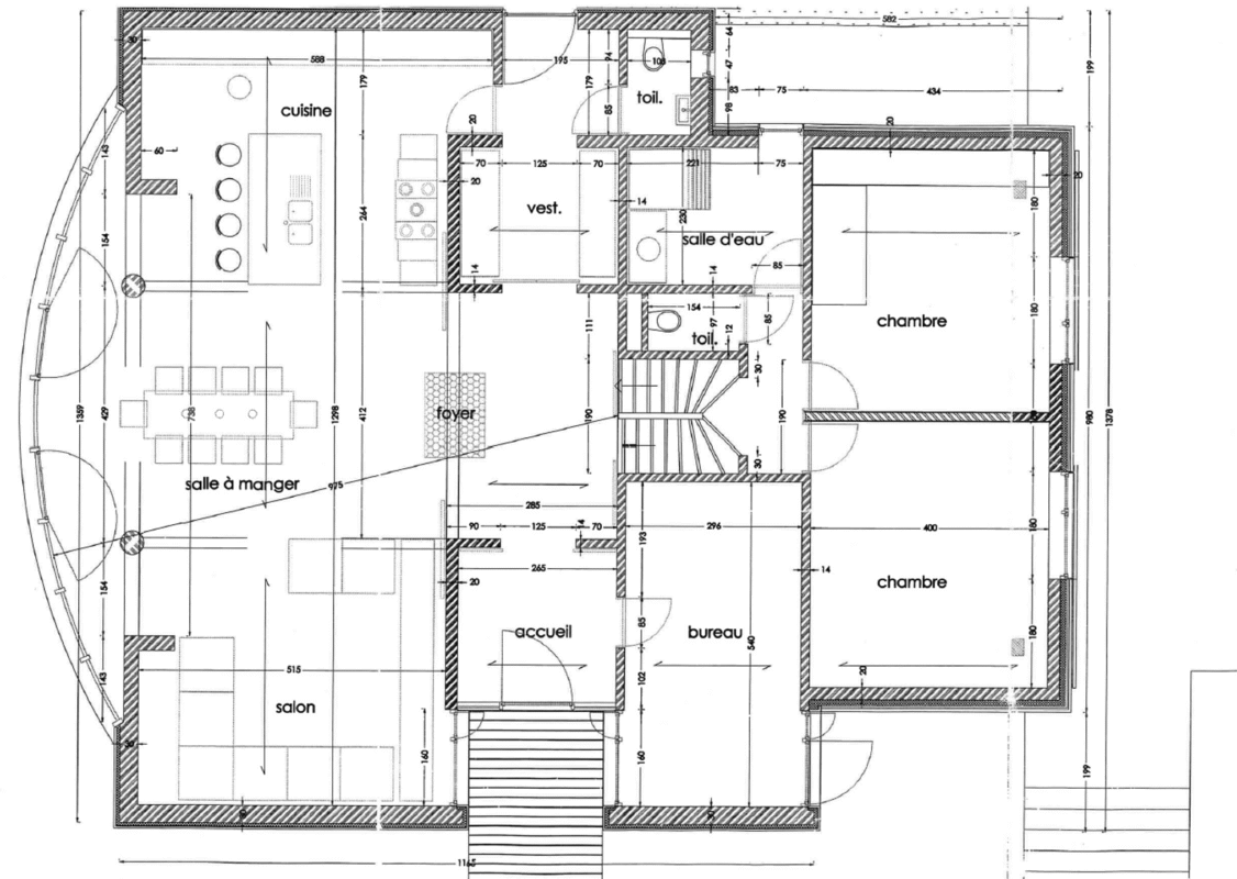
Erdgeschoss:
Eingangshalle, Büro, großer Wohnbereich mit Salon, Esszimmer und teilweise ausgestattete offene Küche, ein WC, große Garderobe.

Der große Wohnbereich verfügt über eine riesige Fensterfront (Verglasung mit Sonnenschutz) mit Zugang zum Garten. Ein weiterer Ausgang befindet sich auf der Nordseite.

Im großen Wohnbereich steht ein Tulikivi-Speicherofen.

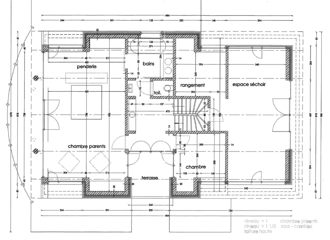
Erste Etage:
4 Schlafzimmer, davon eines sehr groß (40 m²) mit Terrasse, Ankleidezimmer, 2 Badezimmer, 2 WCs, überdachte Terrasse

Obergeschoss:
Ein großer Raum sowie ein kleines Schlafzimmer

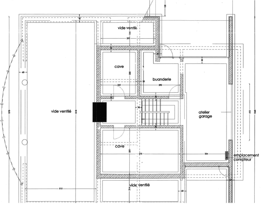
Garage/Werkstatt (mit Wasseranschluss), eine Waschküche und 2 große Kellerräume sowie belüftete Hohlräume

Außenbereich:
Weitläufiges Grundstück und Carport-Stellplatz

Ausstattung

  • Doppelverglasung, teilweise mit Sonnenschutz
  • Heizung: Holzofen (Tulikivi-Speicherofen – Buche und Birke)
  • Photovoltaikanlage (mit Zähler)
  • Kanalanschluss mit Hebeanlage
  • Regenwasserzisterne mit 20.000 Liter Fassungsvermögen
  • Trinkbares Regenwasser (gereinigt durch Umkehrosmose-System mit Filter)

Kontakt

Eigentümerin und Verkäuferin:
Isabelle Köchli
+32 495 565 219

Projektdetails

Ort: Chemin des Vignes 1, Wellin, Région wallonne, Belgien
Karte anzeigen
Projekt: Wohnhaus
Typ: Kauf
Fertigstellung: 2014
Exposé: Download
Wohnfläche: 301 m²
 
Sie wollen keine neuen Immobilien verpassen?: Jetzt Anmelden
Thoma Holz100 Haus in Wellin, Provinz Luxemburg - Thoma Holz100

 

Sie wollen keine neuen Immobilien verpassen?

Für mehr Informationen laden Sie sich bitte hier das Exposé herunter.

Verpassen Sie keine neuen Immobilien mit unserem Newsletter

Zur Anmeldung

Zurück zu Immobilienkauf

Weitere Immobilienprojekte